티스토리 뷰
목차
2025년 대구 그린벨트 해제지역 발표! 이번에 달성군 하빈면을 포함한 일부 지역이 개발제한구역에서 해제됩니다. 특히 대구농수산물도매시장 이전과 신도시 개발 가능성까지 거론되면서 지역민들의 관심이 높아지고 있는데요.
그린벨트 총면적, 해제 이유, 부동산 시장에 미칠 영향, 집값 변화, 주의해야 할 점까지 한눈에 정리했습니다!
대구 그린벨트 해제, 무엇이 달라지나?
정부가 2025년 대규모 그린벨트 해제 계획을 발표하면서 전국적으로 큰 관심을 받고 있습니다.
국토교통부의 이번 그린벨트 해제 관련 자료도 아래 첨부해 드리니 참고해 보세요.
특히 이번 발표에서는 부산, 대구, 대전, 울산, 광주 등 비수도권 15곳에서 총 42㎢의 개발제한구역(그린벨트)이 해제될 예정인데요. 그중에서도 대구 지역의 해제 규모와 개발 계획이 눈길을 끌고 있습니다.
과연 대구 그린벨트 해제지역은 어디이며, 어떤 개발이 이루어질까요?
그리고 부동산 시장에는 어떤 영향을 미칠까요?
대구 그린벨트 해제지역 및 개발 계획
해제 대상 지역: 대구 달성군 하빈면 일대
이번 대구 지역의 그린벨트 해제 대상지는 달성군 하빈면 일대입니다.
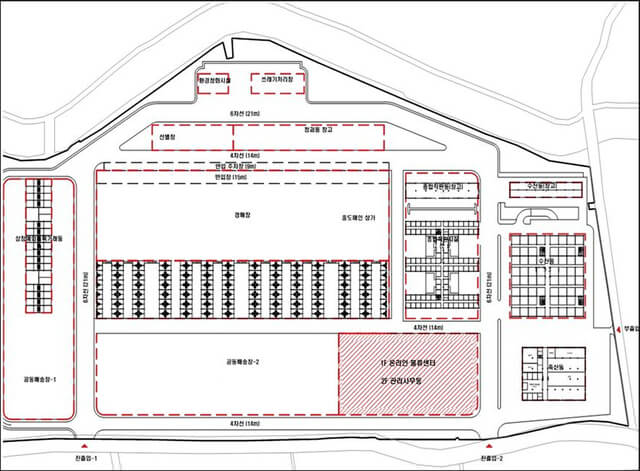
이 지역은 대구농수산물도매시장 이전 부지로 활용될 예정인데요.
기존의 반고개시장 인근에 위치한 대구농수산물도매시장은 시설이 노후화되고, 도심 내 물류 효율성이 떨어지는 문제가 있어 이전이 꾸준히 논의되어 왔습니다.
대구농수산물도매시장 이전 및 개발 계획
- 총 사업비: 4,460억 원
- 사업 부지: 약 45만㎡(대략 13만 평)
- 개장 목표: 2032년
- 주요 시설: 농수산물 유통·물류센터, 신선식품 가공시설 등
💡 그린벨트 해제로 인해 도매시장 이전이 확정되면서, 대구 서·남부권의 농수산물 유통 구조가 크게 변화할 것으로 보입니다.
👉 이번 그린벨트 해제 지역에 대한 자세한 정부 발표 내용은?
대구 부동산 시장에 미치는 영향
그린벨트 해제는 부동산 시장에도 직접적인 영향을 미치는 요소입니다.
특히, 이번 대구 해제 지역은 물류 인프라와 상업 시설이 조성될 가능성이 높아, 주변 지역의 주거 및 상업지 가치에 영향을 줄 것으로 예상됩니다.
🔹 단기적 영향: 토지 수요 증가 및 기대감 상승
- 도매시장 이전 예정지 인근 토지 수요가 급증할 가능성
- 개발 기대감으로 인해 주변 지역 집값 단기 상승 예상
🔹 중장기적 영향: 개발 완료 후 부동산 가치 변화
- 신도시 개발이 아닌 물류 중심 지역이기 때문에 주거지보다는 상업·산업 시설이 증가할 전망
- 도매시장 이전 후 기존 시장(반고개시장) 부지 활용 여부가 또 다른 부동산 변수로 작용 가능
💡 대구 그린벨트 해제 지역의 현재 부동산 동향은 어떻게 흘러가고 있을까요?
그린벨트 해제 지역 주의사항
✅ 정부 규제 및 토지거래허가구역 여부 확인
그린벨트 해제 지역은 투기 방지를 위해 토지거래허가구역으로 지정될 가능성이 큽니다.
따라서 부동산 거래 전에 해당 지역의 규제 여부를 반드시 확인해야 합니다.
✅ 장기적인 개발 계획 체크
모든 해제 지역이 즉시 개발이 진행되는 것은 아니므로, 개발 계획과 진행 속도를 고려한 신중한 접근이 필요합니다.
✅ 상업지와 주거지 구분하기
대구 달성군 하빈면은 주거보다는 물류 및 유통 중심지로 개발될 가능성이 크므로, 주거용 투자를 고려하는 경우 별도의 신도시 개발 계획이 있는지 확인하는 것이 중요합니다.
👉 대구시의 그린벨트 해제 관련 공식 발표를 직접 확인하세요!
대구 그린벨트 해제, 기회인가?
대구 그린벨트 해제는 도시 발전과 부동산 시장에 긍정적인 영향을 미칠 가능성이 높습니다.
특히, 대구농수산물도매시장 이전이 확정되면서 물류·유통 기능이 강화될 전망인데요.
이로 인해 상업지 가치가 상승하고, 인근 지역 개발 가능성이 커질 것으로 예상됩니다.
하지만, 부동산 시장에서 신중한 접근이 필요한 것도 사실입니다.
개발 속도, 정부 규제, 실수요 여부 등을 면밀히 검토한 후 투자 및 거래를 진행하는 것이 중요합니다.
💡 대구뿐만 아니라 전국적으로 진행되는 그린벨트 해제 소식이 궁금하다면?
📢 앞으로도 대구 및 전국 부동산 시장 변화에 대한 소식을 계속 전해드리겠습니다! 🚀

